クリエイト礼文の山形県のマンション・アパート賃貸物件【センチュリー21クリエイト礼文】

物件詳細

山形市双葉町1丁目 マンション クオリア双葉
up

賃料 6.5万円
交通 JR山形新幹線山形駅 徒歩480m 徒歩6分
所在地 山形県山形市双葉町
物件種目 敷金/礼金 間取り 面積 築年月
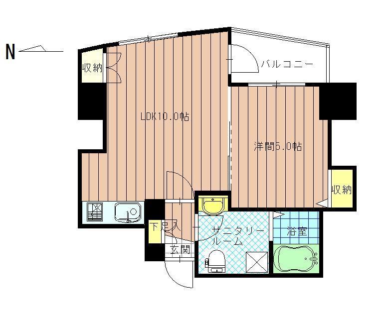
マンション 1ヶ月/ 1ヶ月 1LDK 33.56m² 2006/12/01
 
この物件のコメント

☆山形駅まで徒歩3分の好立地☆ エントランスはオートロック付きで安心のセキュリティ♪無料Wi-Fi導入済み!コンビニ・スーパーも近い便利なエリア。お掃除も楽々、安心・安全のIHクッキングヒーター付きで

画像をクリックすると拡大画像が表示されます。

最寄り駅からの道のり navigation

Loading...

学区エリア scholl district

クオリア双葉はの学区エリアです。

左のタブで小学校、中学校の学区エリアの切り替えができます。

クオリア双葉周辺の学校一覧

ストリートビュー street view

物件概要 overview

物件番号 60002-853-203 物件種別 マンション
更新日 2026年04月26日 所在地 山形県山形市双葉町
交通 JR山形新幹線山形駅 徒歩480m 徒歩6分 賃料 6.5万円
築年月 2006/12/01 築年数 19年
面積 33.56m² 仲介手数料 1ヶ月
駐車場 7,700円  バルコニー
向き 建物階数 地上6階
部屋階数 2階 総戸/区画数 19
建物構造 RC 管理形態 管理人巡回 
間取内容 1LDK 10畳 洋室5畳 取引態様 専任媒介
引渡/入居時期 相談 現況 解約予定
設備・条件 IT重説対応物件有り /初期費用クレジット決済可有り /ペット不可 /楽器不可 /オンライン内見可 /日当たり良好有り /通風良好有り /ガス種類プロパン /キッチンタイプシステムキッチン /コンロIHクッキングヒーター付 /コンロの口数2口 /フローリング全室フローリング /インターホンTV付 /オートロック有り /平置き有り /CATV有り /インターネット使用料不要 /トイレ種類水洗 /バストイレ別室 /バス有り /温水洗浄便座有り /給湯有り /脱衣所有り /追い焚き給湯有り /ベランダ有り /エアコン有り /照明有り /洗濯機置き場有り /電気容量(契約アンペア)40 /クローゼット有り /シューズボックス有り /タイヤ置き場有り /水道公営 /排水公共下水 /洗髪洗面化粧台有り /洗面所独立有り /宅配ボックス有り /エレベーター
備考
  • 敷金:1ヶ月
  • 礼金:1ヶ月
  • 保証会社:アーク賃貸保証 加入必須
  • 初回保証料:初回:賃料総額×50%、月額:2,300円(ベースプラン)

条件の近いおすすめ物件 recommend

当ホームページの物件ついてのお問い合わせはこちらからお寄せ下さい。
お電話でのお問い合わせ
0120-31-5774
株式会社クリエイト礼文(クリエイト レモン)
〒990-2413 山形県山形市南原町2丁 目7-39
国土交通大臣(3)第8271号
定休日/水曜日
メールフォームでのお問い合わせ

下の空欄に記入して、送信ボタンを一度だけ押してください。
フォーム送信後、ご入力したメールアドレス宛に自動でお問い合わせ内容の控えが届きます。
入力された個人情報は当社個人情報保護方針に基づき取り扱われることに同意するものとします。
」は必須項目です。

物件名
お名前

お名前をご入力ください。例)山田 太郎

メールアドレス

メールアドレスを半角英数字にてご入力ください。例)info@sample.com

電話番号

電話番号をご入力ください。例)03-1234-5678

ご希望内容をチェックして下さい
ご質問・ご要望

ご質問・ご相談などご自由に入力してください

Fudousan Plugin Ver.1.6.6